Kiedy wybierzemy dwa lub więcej wymiarów w rysunku, na palecie wymiarów pojawi się zestaw narzędzi wyrównania.

Rozmieść wymiary automatycznie |
 |
Automatycznie rozmieszcza wybrane wymiary. Patrz: Rozmieść wymiary automatycznie.
|
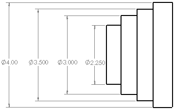
Rozmieść równomiernie liniowo/promieniowo |
 |
Rozmieszcza równomiernie wybrane wymiary, liniowo lub promieniowo, pomiędzy wymiarem najbliżej i najdalej położonym względem części.

|
Wyrównaj współliniowo |
 |
Wyrównuje wybrane wymiary poziomo, pionowo lub promieniowo. Aby wyrównać wymiary do konkretnego wymiaru, należy nacisnąć klawisz Ctrl i wybrać wymiar a następnie wybrać pozostałe wymiary.

|
Wyrównaj schodkowo |
 |
Rozmieszcza wybrane wymiary liniowe schodkowo.

|
Wyrównaj tekst wymiaru do góry |
 |
Wyrównuje tekst wybranego wymiaru do góry.

|
Wyrównaj tekst wymiaru do dołu |
 |
Wyrównuje tekst wybranego wymiaru do dołu.

|
Wyrównaj tekst wymiaru do lewej |
 |
Wyrównuje tekst wybranego wymiaru do lewej.

|
Wyrównaj tekst wymiaru do prawej |
 |
Wyrównuje tekst wybranego wymiaru do prawej.

|
Aby regulować odstępy pomiędzy wymiarami, należy użyć regulatora tarczowego na palecie wymiarów lub ręcznie przeciągnąć wymiary. Regulator tarczowy pojawia się na palecie wymiarów tylko wtedy, gdy dostępne są opcje odstępów.
Wartość odstępów wymiarów jest współczynnikiem skalowania dla odstępów. Na przykład: 2 zwiększa odstępy 2 razy, czyli podwaja je.