Expand WprowadzenieWprowadzenie
Expand AdministracjaAdministracja
Expand Interfejs użytkownikaInterfejs użytkownika
Expand Podstawy SolidWorksPodstawy SolidWorks
Expand Przejście z 2D do 3DPrzejście z 2D do 3D
Expand ZłożeniaZłożenia
Expand CircuitWorksCircuitWorks
Expand KonfiguracjeKonfiguracje
Expand SolidWorks CostingSolidWorks Costing
Expand Design CheckerDesign Checker
Expand Badania projektu w SolidWorksBadania projektu w SolidWorks
Collapse Opisywanie szczegółów i rysunkiOpisywanie szczegółów i rysunki
Opisywanie szczegółów - Informacje ogólne
Ustawianie opcji opisywania szczegółów
Elementy modelu
Menedżer właściwości PropertyManager Elementy modelu
Expand eDrawings UwagieDrawings Uwagi
Expand StylStyl
Dodaj lub aktualizuj styl
Expand AdnotacjeAdnotacje
Expand TabeleTabele
Expand Lista materiałów (LM)Lista materiałów (LM)
Expand Standardy projektowaniaStandardy projektowania
Expand Ustawienia drukowaniaUstawienia drukowania
Collapse RysunkiRysunki
Expand Podstawowe funkcje rysunkówPodstawowe funkcje rysunków
Expand Typy dokumentów rysunkówTypy dokumentów rysunków
Expand Standardowe widoki rysunkuStandardowe widoki rysunku
Expand Wyprowadzone widoki rysunkuWyprowadzone widoki rysunku
Menedżer właściwości PropertyManager Wielokrotność widoków
Menedżer właściwości PropertyManager Przekształć widok na szkic
Expand Wyrównanie i wyświetlanie widoku rysunkuWyrównanie i wyświetlanie widoku rysunku
DrawCompare
Statystyka rysunku
Drukowanie rysunków
Wyślij pocztę
Expand Zarządzanie blokiem tytułowymZarządzanie blokiem tytułowym
Collapse Wymiary na rysunkachWymiary na rysunkach
Expand DFMXpressDFMXpress
Expand DriveWorksXpressDriveWorksXpress
Expand FloXpressFloXpress
Expand Import i eksportImport i eksport
Expand Wyświetlanie modeluWyświetlanie modelu
Expand Projektowanie formProjektowanie form
Expand Badania ruchuBadania ruchu
Expand Części i operacjeCzęści i operacje
Expand Wyznaczanie trasyWyznaczanie trasy
Expand Arkusz blachyArkusz blachy
Expand SimulationSimulation
Expand SimulationXpressSimulationXpress
Expand SzkicowanieSzkicowanie
Expand Produkty SustainabilityProdukty Sustainability
Expand SolidWorks UtilitiesSolidWorks Utilities
Expand TolerancingTolerancing
Expand TolAnalystTolAnalyst
Expand ToolboxToolbox
Expand Konstrukcje spawaneKonstrukcje spawane
Expand Workgroup PDMWorkgroup PDM
Expand Rozwiązywanie problemówRozwiązywanie problemów
Glosariusz
Ukryj spis treści

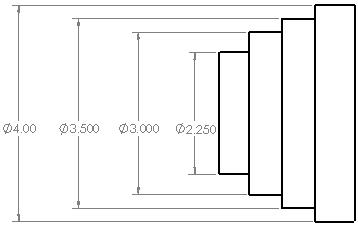
Paleta wymiarów - Narzędzia wyrównania

Kiedy wybierzemy dwa lub więcej wymiarów w rysunku, na palecie wymiarów pojawi się zestaw narzędzi wyrównania.



Rozmieść wymiary automatycznie

Automatycznie rozmieszcza wybrane wymiary. Patrz: Rozmieść wymiary automatycznie.

Rozmieść równomiernie liniowo/promieniowo

Rozmieszcza równomiernie wybrane wymiary, liniowo lub promieniowo, pomiędzy wymiarem najbliżej i najdalej położonym względem części.

Wyrównaj współliniowo
Wyrównuje wybrane wymiary poziomo, pionowo lub promieniowo.
Aby wyrównać wymiary do konkretnego wymiaru, należy nacisnąć klawisz Ctrl i wybrać wymiar a następnie wybrać pozostałe wymiary.

Wyrównaj schodkowo

Rozmieszcza wybrane wymiary liniowe schodkowo.

Wyrównaj tekst wymiaru do góry

Wyrównuje tekst wybranego wymiaru do góry.

Wyrównaj tekst wymiaru do dołu

Wyrównuje tekst wybranego wymiaru do dołu.

Wyrównaj tekst wymiaru do lewej

Wyrównuje tekst wybranego wymiaru do lewej.

Wyrównaj tekst wymiaru do prawej

Wyrównuje tekst wybranego wymiaru do prawej.

Aby dostosować odstępy pomiędzy wymiarami, należy:

Użyć regulatora tarczowego na palecie wymiarów lub ręcznie przeciągnąć wymiary. Regulator tarczowy pojawia się na palecie wymiarów tylko wtedy, gdy dostępne są opcje odstępów.

Wartość odstępów wymiarów jest współczynnikiem skalowania dla odstępów. Na przykład: 2 zwiększa odstępy 2 razy, czyli podwaja je.


Wyraź swoje opinie dotyczące tego tematu

SOLIDWORKS docenia wszelkie informacje i uwagi dostarczone przez użytkownika na temat prezentacji, dokładności oraz prawidłowości dokumentacji. Proszę użyć poniższego formularza, aby wysłać komentarze I sugestie na temat tego tematu do naszego zespołu dokumentacyjnego. Zespół dokumentacyjny nie może udzielać informacji na pytania natury technicznej. Proszę kliknąć tutaj, aby uzyskać informacje dotyczące pomocy technicznej.

* Wymagane

 
*Email:  
Temat:   Opinie dotyczące tematów pomocy
Strona:   Paleta wymiarów - Narzędzia wyrównania
*Komentarz:  
*   Oświadczam, że zapoznałem/zapoznałam się z polityką prywatności, zgodnie z którą moje dane osobowe będą wykorzystywane przez firmę Dassault Systèmes, i niniejszym ją akceptuję

Wydrukuj temat

Wybierz zakres treści do druku:

x

Wykryliśmy że używasz przeglądarki w wersji starszej niż Internet Explorer 7. Dla zoptymalizowanego wyświetlania sugerujemy uaktualnienie przeglądarki do Internet Explorer 7 lub nowszej.

 Nie pokazuj tego komunikatu ponownie
x

Wersja zawartości pomocy w sieci Web: SOLIDWORKS 2014 SP05

Aby wyłączyć pomoc w sieci Web w oprogramowaniu SOLIDWORKS i użyć zamiast tego pomocy lokalnej, należy kliknąć Pomoc > Użyj pomocy SOLIDWORKS w sieci Web.

Aby zgłosić problemy związane z interfejsem lub funkcją wyszukiwania pomocy w sieci Web, należy skontaktować się z lokalnym przedstawicielem pomocy technicznej. Aby wyrazić opinie dotyczące poszczególnych tematów pomocy, należy użyć łącza “Opinie dotyczące tego tematu” na stronie danego tematu.