Bir teknik resimde iki veya daha çok ölçümlendirme seçtiğinizde, ölçümlendirme paletinde bir dizi hizalama aracı görüntülenir.

Ölçümlendirmeleri Oto Yerleştir |
 |
Seçili ölçümlendirmeleri otomatik olarak yerleştirir. Bkz. Ölçümlendirmeleri Oto Yerleştir.
|
Doğrusal/Radyal Olarak Eşit Aralıklarla Yerleştir |
 |
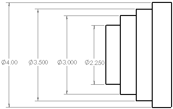
Seçili ölçümlendirmeleri, seçili ölçümlendirmelerden parçaya en yakın olandan en uzak olanına doğru doğrusal veya radyal olarak eşit aralıklarla yerleştirir.

|
Eşdoğrusal Olarak Hizala |
 |
Seçili ölçümlendirmeleri yatay, dikey veya radyal olarak hizalar. Ölçümlendirmeleri belirli bir ölçümlendirme ile hizalamak için, Ctrl tuşuna basın ve ölçümlendirmeyi seçin, ardından geri kalan ölçümlendirmeleri seçin.

|
Kademeli Hizala |
 |
Seçili doğrusal ölçümlendirmeleri kademelendirir.

|
Ölçümlendirme Metnini Üste Yasla |
 |
Seçili ölçümlendirme metnini üste yaslar.

|
Ölçümlendirme Metnini Alta Yasla |
 |
Seçili ölçümlendirme metnini alta yaslar.

|
Ölçümlendirme Metnini Sola Yasla |
 |
Seçili ölçümlendirme metnini sola yaslar.

|
Ölçümlendirme Metnini Sağa Yasla |
 |
Seçili ölçümlendirme metnini sağa yaslar.

|
Ölçümlendirmeler arasındaki boşluğu ayarlamak için:
Ölçümlendirme paletindeki kaydırıcıyı kullanın veya ölçümlendirmeleri manuel olarak sürükleyin. Teker, yalnızca aralık seçenekleri bulunduğunda, ölçümlendirme paletinde görünür.
Ölçümlendirme Aralık Değeri, boşluk için ölçeklendirme faktörüdür. Örneğin, 2 aralığı 2'nin faktörü olarak artırır, yani iki katına çıkarır.