Masquer le sommaire

Esquisse par rapport à la mise en plan

Dans SOLIDWORKS, les mises en plan sont les documents 2D que vous créez à partir de pièces 3D ou de modèles d'assemblage. Les outils appelés outils dessin dans les logiciels de CAO 2D sont appelés outils esquisse dans le logiciel SOLIDWORKS.

Lorsque vous développez des modèles dans SOLIDWORKS, vous esquissez des entités géométriques (telles que des rectangles et des cercles) servant de base pour les fonctions volumiques (extrusions, révolutions et enlèvements de matière, par exemple). Vous pouvez esquisser les entités de façon approximative, puis les coter avec précision.

La procédure générale, de l'esquisse à la mise en plan en passant par le modèle, est la suivante:

  1. Dans un document de pièce, ouvrez une esquisse et esquissez une entité, telle qu'un rectangle, de façon approximative.

    extrude-sketch.gif
  2. Cotez l'esquisse de façon précise.

    extrude-dimension.gif
  3. Extrudez l'esquisse pour former une fonction de base volumique 3D qui devient la base d'une pièce.
    extrude-part.gif
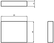
  4. Ouvrez une nouvelle mise en plan, insérez la pièce en tant que pièce 2D 3 vues standard et insérez les cotes.
    extrude-drawing.gif


Faire un commentaire sur cette rubrique

Tous les commentaires concernant la présentation, l'exactitude et l'exhaustivité de la documentation sont les bienvenus. Utilisez le formulaire ci-dessous pour faire parvenir vos commentaires et suggestions directement à notre équipe de documentation. Celle-ci ne peut pas répondre aux questions de support technique. Cliquez ici pour des informations sur le support technique.

* Requis

 
*Courriel:  
Sujet:   Commentaires sur les rubriques d'aide
Page:   Esquisse par rapport à la mise en plan
*Commentaire:  
*   Je reconnais avoir pris connaissance et accepter par la présente la politique de confidentialité en vertu de laquelle mes données personnelles seront utilisées par Dassault Systèmes

Rubrique d'impression

Sélectionner l'étendue du contenu à imprimer :

x

La version du navigateur que vous utilisez est antérieure à Internet Explorer 7. Afin d'optimiser l'affichage, nous suggérons d'utiliser Internet Explorer 7 ou une version ultérieure.

 Ne plus afficher ce message
x

Version du contenu de l'aide sur le Web: SOLIDWORKS 2017 SP05

Pour désactiver l'aide sur le Web dans SOLIDWORKS et utiliser l'aide locale à la place, cliquez sur ? > Utiliser l'aide sur le Web de SOLIDWORKS.

Pour signaler tout problème rencontré avec l'interface ou la fonctionnalité de recherche de l'aide sur le Web, contactez votre support technique local. Pour faire part de vos commentaires sur des rubriques d'aide individuelles, utilisez le lien “Commentaires sur cette rubrique” sur la page de la rubrique concernée.