目次を表示しない

スケッチ vs 図面

SOLIDWORKS では、図面は 3D 部品モデルやアセンブリ モデルから作成する 2D ドキュメントです。 2D CAD ソフトウェアで図面ツールとして扱われているツールは、SOLIDWORKS のスケッチ ツールに該当します。

SOLIDWORKS でモデルを作成する場合、ジオメトリ エンティティ(矩型や円など)をスケッチし、ソリッド フィーチャー(押し出し、回転、カットなど)のベースにします。 スケッチ エンティティをおおまかにスケッチしてからエンティティを正確に寸法付けできます。

スケッチからモデル、図面への一般的な作業行程は次の通りです:

  1. 部品 ドキュメントでスケッチを 開き、矩型などの エンティティをおおまかにスケッチします。

    extrude-sketch.gif
  2. スケッチを正確に寸法付け します。

    extrude-dimension.gif
  3. スケッチを押し出し て、部品のベースとなる3D ソリッド ベース フィーチャーを作成します。
    extrude-part.gif
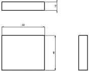
  4. 新規の図面を開き、部品を2D標準3面図として挿入し、次に寸法を挿入 します。
    extrude-drawing.gif


トピックについてフィードバックを送信

ヘルプに関してフィードバックを送信することができます。しかし、ドキュメンテーション グループはテクニカル サポートに関する質問に答えることはできません。 テクニカル サポートに関する情報はここをクリックしてください

* 必要項目

 
*電子メール:  
件名:   トピックのフィードバック
ページ:   スケッチ vs 図面
*コメント:  
*   プライバシー ポリシーを読み、個人情報が Dassault Systèmes によって使用されることに同意します。

トピックの印刷

印刷するコンテンツの範囲を選択:

x

Internet Explorer 7 より古いブラウザ バージョンが検知されました。 表示を最適化するにはInternet Explorer 7 以上のブラウザ バージョンにアップグレードしてください。

 今後このメッセージを表示しない
x

Web ヘルプ コンテンツ バージョン: SOLIDWORKS 2017 SP05

SOLIDWORKS で Web ヘルプを無効にして、ローカル ヘルプを使用するには、ヘルプ > SOLIDWORKS Web ヘルプ使用 をクリックしてください。

Web ヘルプのインタフェースや検索機能に関する問題は、お客様のサポート担当者までご連絡ください。各トピック ページの「トピックについてフィードバックする」リンクを使用し、各ヘルプ トピックについてフィードバックを送信することもできます。