隱藏目錄

產生工程圖

在 SOLIDWORKS 中繪圖

您可以在 SOLIDWORKS 中繪製工程圖而不產生模型。

在 SOLIDWORKS 中繪製工程圖而不產生模型:
  1. 使用開啟新檔 來開啟一個工程圖文件。 選擇一個範本。
  2. 使用草圖工具列上的工具繪製線條、矩形、圓及其他圖元。
  3. 使用「尺寸/限制條件」工具列上的智慧型尺寸 工具來標註圖元的尺寸。
  4. 使用註記工具列上的工具來加入註記(註解、幾何公差符號、零件號球等)。

從模型產生工程圖

您可以從零件與組合件文件中產生工程圖。

從零件或組合件文件產生工程圖:

  1. 在零件或組合件文件中,按一下「標準」工具列上的 在零件或組合件文件中,按一下標準工具列上的 ,並在 從零件/組合件中產生工程圖 對話方塊中選擇一個範本。
    視圖調色盤會於視窗的右側開啟。
  2. 按一下 來固定視窗調色盤。
  3. 從視窗調色盤中拖曳一個視圖到工程圖頁中。
  4. 工程視圖 PropertyManager 中,設定如方位、顯示樣式、比例等的選項,然後按一下
  5. 重複步驟 3 及步驟 4 來加入視圖。
    您可以在所給定的工程圖文件中有任何模型的任何工程視圖。
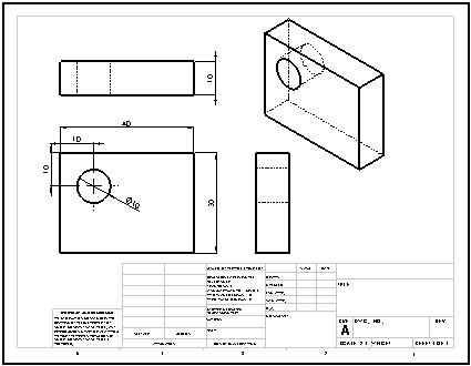
模型零件
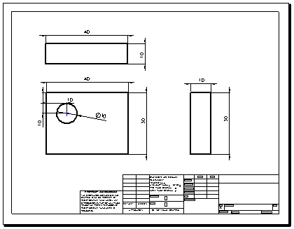
插入了好幾個視圖及尺寸的工程圖


提供對此主題的意見反應

SOLIDWORKS 歡迎您提供有關於文件呈現方式、正確性、及完整性的意見反應。請使用下方的表格直接將您對此主題的意見與建議傳送給我們的文件團隊。文件團隊並無法回答關於技術支援的問題。按一下此處來獲得關於技術支援的資訊

* 必要的

 
*電子郵件:  
主旨:   說明主題的意見反應
頁面:   產生工程圖
*意見:  
*   我承認已閱讀且僅此接受隱私權政策,Dassault Systèmes 將遵循此政策之規定使用我的個人資料

列印主題

選擇要列印的內容範圍:

x

偵測到您使用的瀏覽器版本是舊於 Internet Explorer 7。要獲得最佳的顯示,建議您升級瀏覽器到 Internet Explorer 7 或更新的版本。

 不要再次顯示此訊息
x

Web 式說明內容版本:SOLIDWORKS 2017 SP05

要從 SOLIDWORKS 中停用 Web 式的說明並改用本機說明,請按一下說明 > 使用 SOLIDWORKS Web 式說明

要報告在 Web 式說明介面及搜尋中遇到的問題,請聯絡您當地的技術支援代表。要針對個別說明主題提供意見反應,請使用個別主題頁面中的「提供對此主題的意見反應」連結。