Vytvoření výkresů

Koncepty v SOLIDWORKS

Můžete vytvořit koncept v SOLIDWORKS bez vytvoření modelu.

Postup vytvoření konceptu v SOLIDWORKS bez použití modelu:
  1. Otevřete Nový dokument výkresu. Vyberte šablonu.
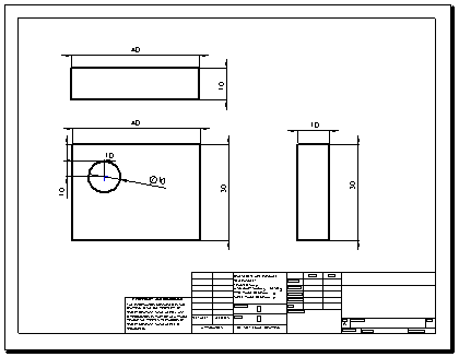
  2. Nakreslete čáry, obdélníky, kružnice a další entity pomocí nástrojů na panelu nástrojů Skica.
  3. Okótujte entity pomocí nástroje Inteligentní Kóta na panelu nástrojů Kóty/vazby.
  4. Pomocí nástrojů na panelu Popisy přidejte do výkresu popisy (Poznámky, Značky geometrické tolerance, Pozice a další).

Tvorba výkresů z modelů

Výkresy můžete vytvářet z dokumentů dílů či sestav.

Postup vytváření výkresů z dokumentů dílů a sestav:

  1. V dokumentu dílu nebo sestavy klepněte na Vytvořit výkres z dílu/sestavy na standardním panelu nástrojů a vyberte šablonu v dialogovém okně Formát/velikost listu.
    Paleta pohledů se otevře na pravé straně okna.
  2. Klepnutím na připíchněte Paletu pohledů.
  3. Přetáhněte pohled z Palety pohledů do výkresu.
  4. Ve správci PropertyManager Pohled výkresu nebo Průmět nastavte možnosti, jako například orientace, styl zobrazení, měřítko atd., a klepněte na .
  5. Přidejte další pohledy zopakováním 3. a 4. kroku.
    V konkrétním dokumentu výkresu můžete mít libovolné pohledy výkresu pro libovolné modely.
Díl modelu
Výkres s několika pohledy a kótami