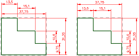
치수 자동 정렬의 예 다음 이미지는 자동 정렬 전후의 치수 지정된 지오메트리를 보여 줍니다. 치수가 가장 작은(지오메트리에 가장 가까운) 것부터 가장 큰 것까지 간격 지정되었습니다. 치수가 서로 나란히 정렬되었습니다. 치수가 균등하게 간격 지정되고 서로 나란히 정렬되었습니다. 치수 문자가 치수 보조선 사이의 가운데에 배치되었습니다. 상위 주제치수 자동 정렬