도면 작성

SOLIDWORKS에서 구배하기

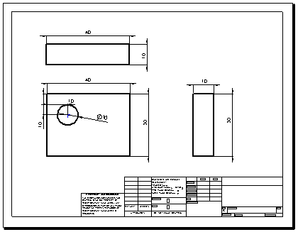
모델 작성 없이 SOLIDWORKS에서 도면을 구배할 수 있습니다.

모델 작성 없이 SOLIDWORKS에서 도면 구배하는 방법:
  1. 도면 새 문서 를 여십시오. 템플릿을 선택하십시오.
  2. 스케치 도구 모음에 있는 도구들을 사용하여 선, 사각형, 원 등을 그립니다.
  3. 치수/구속조건 도구 모음에서 지능형 치수 도구를 사용하여 스케치에 치수를 부가합니다.
  4. 주석 도구 모음에 있는 도구를 사용하여 노트, 기하 공차 기호, 부품 번호 등과 같은 주석을 삽입합니다.

모델에서 도면 작성하기

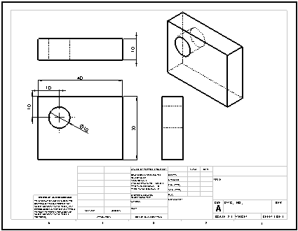
파트와 어셈블리 문서에서 도면을 작성할 수 있습니다.

파트와 어셈블리 문서에서 도면 작성하는 방법

  1. 파트나 어셈블리 문서에서, 표준 도구 모음에서 파트/어셈블리에서 도면 작성 을 클릭하고 시트 형식/크기 대화 상자에서 원하는 템플릿을 선택합니다.
    뷰 팔레트가 창의 오른쪽에 열립니다.
  2. 을 클릭해서 뷰 팔레트를 고정합니다.
  3. 뷰 팔레트에서 뷰를 도면 시트로 끕니다.
  4. 도면 뷰 또는 투상도 PropertyManager에서, 방향, 표시 유형, 배율 등의 옵션을 정한 다음 을 클릭합니다.
  5. 3과 4 단계를 반복하고 뷰를 추가합니다.
    도면 문서에 모델의 다양한 도면뷰를 작성할 수 있습니다.
모델 파트
여러 개의 뷰와 치수가 삽입된 도면