Réorganisation automatique des cotes
|
|
Réorganise automatiquement les cotes sélectionnées. Voir Réorganisation automatique des cotes.
|
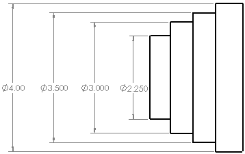
Espacer uniformément linéaire/radial
|
|
Espace uniformément les cotes sélectionnées, de manière linéaire ou radiale, entre les cotes sélectionnées les plus proches et les plus éloignées de la pièce.
|
Aligner colinéaire
|
|
Aligne les cotes sélectionnées horizontalement, verticalement ou radialement. Pour aligner des cotes sur une cote particulière, appuyez sur Ctrl, sélectionnez la cote, puis sélectionnez les cotes restantes.
|
Aligner en quinconce
|
|
Organise en quinconce les cotes linéaires sélectionnées.
|
Aligner le texte de cote en haut
|
|
Aligne le texte de cote sélectionné en haut.
|
Aligner le texte de cote en bas
|
|
Aligne le texte des cotes sélectionnées en bas.
|
Aligner le texte de cote à gauche
|
|
Aligne le texte des cotes sélectionnées à gauche.
|
Aligner le texte de cote à droite
|
|
Aligne le texte des cotes sélectionnées à droite.
|