Wenn Sie zwei oder mehr Bemaßungen in einer Zeichnung auswählen, wird ein Satz an Ausrichtungswerkzeugen auf der Bemaßungspalette angezeigt.

| Bemaßungen automatisch anordnen |
 |
Ordnet die ausgewählten Bemaßungen automatisch an. Siehe Bemaßungen automatisch anordnen.
|
| Gleichmäßiger linearer/radialer Abstand |
 |
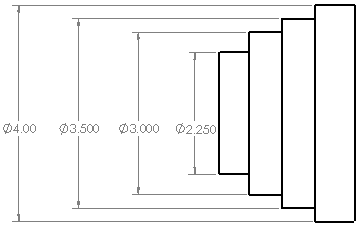
Positioniert ausgewählte Bemaßungen in gleichem Abstand linear oder radial zwischen den von Teil am nächsten und entferntesten ausgewählten Bemaßungen.

|
| Kollinear ausrichten |
 |
Richtet ausgewählte Bemaßungen horizontal, vertikal oder radial aus. Um Bemaßungen auf eine bestimmte Bemaßung auszurichten, drücken Sie auf Strg, und wählen Sie die Bemaßung aus. Wählen Sie anschließend die restlichen Bemaßungen aus.

|
| Versetzt ausrichten |
 |
Positioniert ausgewählte lineare Bemaßungen versetzt.

|
| Bemaßungstext nach oben ausrichten |
 |
Richtet Bemaßungstext nach oben aus.

|
| Bemaßungstext nach unten ausrichten |
 |
Richtet Bemaßungstext nach unten aus.

|
| Bemaßungstext linksbündig |
 |
Richtet Bemaßungstext linksbündig aus.

|
| Bemaßungstext rechtsbündig |
 |
Richtet Bemaßungstext rechtsbündig aus.

|
Um den Abstand zwischen Bemaßungen anzupassen, verwenden Sie das Einstellrad auf der Bemaßungspalette, oder ziehen Sie die Bemaßungen manuell. Das Einstellrad wird in der Bemaßungspalette nur dann angezeigt, wenn die Abstandsoptionen verfügbar sind.
Der Bemaßungsabstandswert ist der Skalierungsfaktor für den Abstand. 2 z.B. vergrößert den Abstand um eine Faktor 2 oder verdoppelt ihn.