Un ensemble d'outils d'alignement sont disponibles sur la palette de cotes lorsque vous sélectionnez deux cotes ou plus.

Réorganisation automatique des cotes |
 |
Réorganise automatiquement les cotes sélectionnées. Voir Réorganisation automatique des cotes.
|
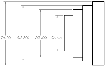
Espacer uniformément linéaire/radial |
 |
Espace uniformément les cotes sélectionnées, de manière linéaire ou radiale, entre les cotes sélectionnées les plus proches et les plus éloignées de la pièce.

|
Aligner colinéaire |
 |
Aligne les cotes sélectionnées horizontalement, verticalement ou radialement. Pour aligner des cotes sur une cote particulière, appuyez sur Ctrl, sélectionnez la cote, puis sélectionnez les cotes restantes.

|
Aligner en quinconce |
 |
Organise en quinconce les cotes linéaires sélectionnées.

|
Aligner le texte de cote en haut |
 |
Aligne le texte de cote sélectionné en haut.

|
Aligner le texte de cote en bas |
 |
Aligne le texte des cotes sélectionnées en bas.

|
Aligner le texte de cote à gauche |
 |
Aligne le texte des cotes sélectionnées à gauche.

|
Aligner le texte de cote à droite |
 |
Aligne le texte des cotes sélectionnées à droite.

|
Pour ajuster l'espacement entre les cotes :
Utilisez la molette dans la palette de cotes ou faites glisser manuellement les cotes. La molette s'affiche dans la palette de cotes uniquement lorsque des options d'espacement sont disponibles.
La Valeur d'espacement de cote représente le facteur de retrait de l'espacement. A titre d'exemple, 2 augmente l'espace d'un facteur de 2 ou le double.