При выборе одного или нескольких размеров в чертеже отображается набор инструментов выравнивания в палитре размеров.

Авто-разместить размеры |
 |
Автоматически размещает выбранные размеры. См. Авто-разместить размеры.
|
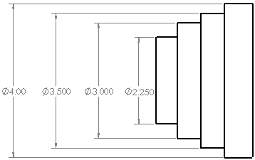
Разместить равномерно линейно/радиально |
 |
Равномерно размещает выбранные размеры линейно или радиально между выбранными наиболее ближним и наиболее дальним от детали размерами.

|
Выровнять коллинеарно |
 |
Выравнивает выбранные размеры горизонтально, вертикально или радиально. Чтобы выровнять размеры по определенному размеру, нажмите на клавишу Ctrl и выберите размер, а затем выберите оставшиеся размеры.

|
Расставить в шахматном порядке |
 |
Линейно выравнивает шахматное расположение выбранных размеров.

|
Выровнять текст размера поверху |
 |
Выравнивает текст выбранного размера поверху.

|
Выровнять текст размера понизу |
 |
Выравнивает текст выбранного размера понизу.

|
Выровнять текст размера по левому краю |
 |
Выравнивает текст выбранного размера по левому краю.

|
Выровнять текст размера по правому краю |
 |
Выравнивает текст выбранного размера по правому краю.

|
Чтобы отрегулировать расстояние между компонентами:
Используйте колесо прокрутки в палитре размеров или перетащите размеры вручную. Колесо прокрутки отображается в палитре размеров, только когда имеются доступные опции расстояния.
Значение расстояния между размерами является коэффициентом масштабирования для расстояния между размерами. Например, 2 увеличивает расстояние между размерами на 2 или удваивает его.