当您在工程图中选取两个或多个尺寸时,有一组对齐工具出现在尺寸调色板上。

自动排列尺寸
|
|
自动排列所选的尺寸。 请参阅自动排列尺寸。
|
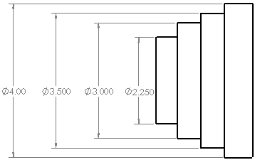
线性/径向均匀等距
|
|
在与零件最近和最远的选定尺寸之间以线性或径向方式设置等间距。
|
共线对齐
|
|
水平、垂直或径向对齐选定尺寸。 要将尺寸与特定尺寸对齐,按 Ctrl 并选取尺寸,然后选取剩余尺寸。
|
交错对齐
|
|
交错排列选定的线性尺寸。
|
上对齐尺寸文字
|
|
上对齐选定尺寸文本。
|
下对齐尺寸文本
|
|
下对齐选定尺寸文本。
|
左对齐尺寸文本
|
|
左对齐选定尺寸文本。
|
右对齐尺寸文本
|
|
右对齐选定尺寸文本。
|
要调整尺寸之间的间距:
使用尺寸调色板中的指轮或手动拖放尺寸。 只有当间距选项可用时,尺寸调色板上才会出现指轮。
尺寸间距值 是间距的缩放系数。 例如,该值为 2 则间距值乘以系数 2,即加倍。