Expand ÚvodÚvod
Expand SprávaSpráva
Expand Uživatelské rozhraníUživatelské rozhraní
Expand Základy SOLIDWORKSZáklady SOLIDWORKS
Expand Přestup z 2D na 3DPřestup z 2D na 3D
Expand SestavySestavy
Expand CircuitWorksCircuitWorks
Expand KonfiguraceKonfigurace
Expand SOLIDWORKS CostingSOLIDWORKS Costing
Expand Design CheckerDesign Checker
Expand Designové studie v SOLIDWORKSDesignové studie v SOLIDWORKS
Collapse Detailování a výkresyDetailování a výkresy
Expand DFMXpressDFMXpress
Expand DriveWorksXpressDriveWorksXpress
Expand FloXpressFloXpress
Expand Datová komunikace SLDXMLDatová komunikace SLDXML
Expand Import a exportImport a export
Expand Zobrazení modeluZobrazení modelu
Expand Navrhování foremNavrhování forem
Expand Studie pohybuStudie pohybu
Expand Díly a prvkyDíly a prvky
Expand Vyznačení trasyVyznačení trasy
Expand Plechové dílyPlechové díly
Expand Aplikace SimulationAplikace Simulation
Expand SimulationXpressSimulationXpress
Expand SkicováníSkicování
Expand SOLIDWORKS MBD SOLIDWORKS MBD
Expand SOLIDWORKS UtilitiesSOLIDWORKS Utilities
Expand SOLIDWORKS SustainabilitySOLIDWORKS Sustainability
Expand TolerováníTolerování
Expand TolAnalystTolAnalyst
Expand ToolboxToolbox
Expand SvařováníSvařování
Expand Workgroup PDMWorkgroup PDM
Expand Řešení potížíŘešení potíží
Pojmy
Skrýt obsah

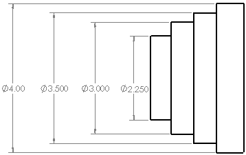
Paleta kóty - Nástroje pro zarovnání

Když ve výkresu vyberete alespoň dvě kóty, zobrazí se na paletě kóty sada nástrojů pro zarovnání.



Automaticky uspořádat kóty

Automaticky uspořádá vybrané kóty. Viz Automaticky uspořádat kóty.

Rozmístit stejnoměrně lineárně/radiálně

Rovnoměrně rozmístí vybrané kóty, lineárně nebo radiálně, mezi nejbližší a nejvzdálenější vybrané kóty z dílu.

Zarovnat kolineárně
Zarovná vybrané kóty horizontálně, vertikálně nebo radiálně.
Chcete-li zarovnat kóty s určitou kótou, stiskněte klávesu Ctrl, zvolte kótu a pak vyberte zbývající kóty.

Zarovnat střídavě

Uspořádá vybrané lineární kóty střídavě.

Zarovnat text kóty nahoru

Zarovná text vybrané lineární kóty nahoru.

Zarovnat text kóty dolů

Zarovná text vybrané lineární kóty dolů.

Zarovnat text kóty doleva

Zarovná text vybrané lineární kóty doleva.

Zarovnat text kóty doprava

Zarovná text vybrané lineární kóty doprava.

Postup úpravy vzdálenosti mezi kótami:

Použijte kolečko myši na paletě kót nebo kóty přetáhněte ručně. Prostřední kolečko se objeví na paletě kót pouze tehdy, když jsou dostupné volby pro vzdálenosti mezi kótami.

Hodnota Mezera mezi kótami je faktorem měřítka pro vzdálenost. Například hodnota 2 zvětší vzdálenost mezi kótami koeficientem 2, tj. ji zdvojnásobí.


Vyjádřete svůj názor na toto téma

SOLIDWORKS uvítá vaše názory ohledně prezentace, přesnosti a obsahu dokumentace. Pomocí níže uvedeného formuláře zašlete komentáře a doporučení k tomuto tématu přímo dokumentačnímu týmu. Dokumentační tým nebude odpovídat na otázky související s technickou podporou. Klepnutím zde získáte informace o technické podpoře.

* Povinné

 
*Email:  
Předmět:   Váš názor na témata nápovědy
Stránka:   Paleta kóty - Nástroje pro zarovnání
*Komentář:  
*   Prohlašuji, že jsem si přečetl/a a souhlasím se zásadami ochrany osobních údajů, podle kterých bude společnost Dassault Systèmes zpracovávat moje osobní údaje

Tisk tématu

Zvolte rozsah, který se má tisknout:

x

Zjistili jsme, že používáte starší verzi prohlížeče než je Internet Explorer 7. Pro optimální zobrazení vám doporučujeme, aby jste upgradovali na Internet Explorer 7 nebo novější.

 Příště tuto zprávu nezobrazovat
x

Verze nápovědy na webu: SOLIDWORKS 2016 SP05

Chcete-li vypnout webovou nápovědu v rámci SOLIDWORKS a raději používat místní nápovědu, klikněte na Nápověda > Použít SOLIDWORKS nápovědu na webu.

Problémy s uživatelským rozhraním a vyhledáváním v nápovědě na webu nahlaste zástupci místní technické podpory. Zašlete váš názor na individuální témata nápovědy prostřednictvím odkazu “Váš názor na toto téma” na každé straně.