Expand ВведениеВведение
Expand АдминистрацияАдминистрация
Expand Интерфейс пользователяИнтерфейс пользователя
Expand Основные принципы SOLIDWORKSОсновные принципы SOLIDWORKS
Expand Переход из  2D в 3DПереход из 2D в 3D
Expand СборкиСборки
Expand CircuitWorksCircuitWorks
Expand КонфигурацииКонфигурации
Expand SOLIDWORKS CostingSOLIDWORKS Costing
Expand Design CheckerDesign Checker
Expand Исследования проектирования в SOLIDWORKSИсследования проектирования в SOLIDWORKS
Collapse Чертежи и оформлениеЧертежи и оформление
Оформление - Обзор
Настройка параметров оформления
Элементы модели
PropertyManager Элементы модели
eDrawings Элементы рецензирования
Expand СтильСтиль
Добавить или обновить стиль
Expand ПримечанияПримечания
Expand ТаблицыТаблицы
Expand СпецификацияСпецификация
Expand Чертежные стандартыЧертежные стандарты
Настройки печати
Collapse ЧертежиЧертежи
Чертежи - Обзор
Expand Чертежи - ВведениеЧертежи - Введение
Expand Типы документов чертежейТипы документов чертежей
Expand Стандартные чертежные видыСтандартные чертежные виды
Expand Производные чертежные видыПроизводные чертежные виды
PropertyManager Множественные виды
PropertyManager "Преобразовать вид в эскиз"
Expand Отображение и выравнивание чертежного видаОтображение и выравнивание чертежного вида
DrawCompare (Сравнение чертежей)
Оценка производительности
Распечатка чертежей
Отправить сообщение
Expand Управление блоками заголовковУправление блоками заголовков
Collapse Размеры в чертежахРазмеры в чертежах
Форматирование размеров в чертежах
Параметры отображения размеров
Отобразить/Скрыть примечания
Expand Подсветка измененных размеровПодсветка измененных размеров
Вставка размеров в чертежи
Тип размера
Свойства документа - Размеры
PropertyManager Размер - Дополнительно
PropertyManager Значение размера
Точность размера
Expand Выравнивание размеров и заметокВыравнивание размеров и заметок
Найти равные
Быстрый размер
Expand Автонанесение размеров в чертежеАвтонанесение размеров в чертеже
DimXpert
PropertyManager Размер
Добавление в чертежи параллельных размеров
Справочные размеры
Справочный параметр центра тяжести в чертежах
Использование скобок для определенного размера
Размеры базовой линии
Expand Ординатные размерыОрдинатные размеры
Expand Смежные угловые размеры Смежные угловые размеры
Размеры фаски
Expand Допуск и точностьДопуск и точность
Перемещение и копирование размеров
Изменить размер
Удаление размеров
Collapse Палитра размеровПалитра размеров
Expand Линии удлинения измеренияЛинии удлинения измерения
Expand Выноски для размеровВыноски для размеров
Пример: Схама типов размеров
Размер до средней точки
Автоматический поиск выносных линий для размеров
Expand DFMXpressDFMXpress
Expand DriveWorksXpressDriveWorksXpress
Expand FloXpressFloXpress
Expand Обмен данными SLDXMLОбмен данными SLDXML
Expand Импорт и экспортИмпорт и экспорт
Expand Отображение моделиОтображение модели
Expand Проектирование литейной формыПроектирование литейной формы
Expand Исследования движенияИсследования движения
Expand Детали и элементыДетали и элементы
Expand МаршрутМаршрут
Expand Листовой металлЛистовой металл
Expand SimulationSimulation
Expand SimulationXpressSimulationXpress
Expand Создание эскизаСоздание эскиза
Expand SOLIDWORKS MBDSOLIDWORKS MBD
Expand SOLIDWORKS UtilitiesSOLIDWORKS Utilities
Expand SOLIDWORKS SustainabilitySOLIDWORKS Sustainability
Expand ОтклоненияОтклонения
Expand TolAnalystTolAnalyst
Expand ToolboxToolbox
Expand Сварные деталиСварные детали
Expand Workgroup PDMWorkgroup PDM
Expand Устранение неполадокУстранение неполадок
Глоссарий
Скрыть содержание

Палитра размеров - Инструменты выравнивания

При выборе одного или нескольких размеров в чертеже отображается набор инструментов выравнивания в палитре размеров.



Авто-разместить размеры

Автоматически размещает выбранные размеры. См. Авто-разместить размеры.

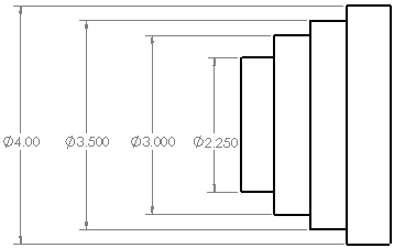
Разместить равномерно линейно/радиально

Равномерно размещает выбранные размеры линейно или радиально между выбранными наиболее ближним и наиболее дальним от детали размерами.

Выровнять коллинеарно
Выравнивает выбранные размеры горизонтально, вертикально или радиально.
Чтобы выровнять размеры по определенному размеру, нажмите на клавишу Ctrl и выберите размер, а затем выберите оставшиеся размеры.

Расставить в шахматном порядке

Линейно выравнивает шахматное расположение выбранных размеров.

Выровнять текст размера поверху

Выравнивает текст выбранного размера поверху.

Выровнять текст размера понизу

Выравнивает текст выбранного размера понизу.

Выровнять текст размера по левому краю

Выравнивает текст выбранного размера по левому краю.

Выровнять текст размера по правому краю

Выравнивает текст выбранного размера по правому краю.

Чтобы отрегулировать расстояние между компонентами:

Используйте колесо прокрутки в палитре размеров или перетащите размеры вручную. Колесо прокрутки отображается в палитре размеров, только когда имеются доступные опции расстояния.

Значение расстояния между размерами является коэффициентом масштабирования для расстояния между размерами. Например, 2 увеличивает расстояние между размерами на 2 или удваивает его.


Оставьте отзыв об этом разделе

SOLIDWORKS благодарит Вас за отзыв по поводу представления, точности и полноты документации. Воспользуйтесь формой ниже, чтобы отправить свои комментарии и предложения о данном разделе справки в Отдел документации. Отдел документации не предоставляет ответы на вопросы по технической поддержке. Нажмите здесь для получения информации о технической поддержке.

* Обязательно

 
*Электронная почта:  
Тема:   Отзывы по поводу разделов Справки
Страница:   Палитра размеров - Инструменты выравнивания
*Отзыв:  
*   Я подтверждаю, что прочитал(а) и принимаю положения политики конфиденциальности, в соответствии с которыми Dassault Systèmes будет использовать мои персональные данные.

Печать разделов

Выберите содержимое для печати:

x

Вы используете более раннюю версию браузера, чем Internet Explorer 7. Для оптимизации отображения рекомендуется обновить Ваш браузер до версии Internet Explorer 7 или новее.

 Больше не отображать это сообщение
x

Версия содержимого веб-справки: SOLIDWORKS 2017 SP05

Чтобы отключить веб-справку в программе SOLIDWORKS и использовать локальную версию справки, нажмите Справка > Использовать веб-справку по SOLIDWORKS .

По проблемам, связанным с интерфейсом и поиском по веб-справке, обращайтесь к местному представителю службы поддержки. Чтобы оставить отзыв по отдельным темам справки, воспользуйтесь ссылкой "Отзыв об этом разделе" на странице нужного раздела.