隱藏目錄

草圖繪製 vs. 工程圖

在 SOLIDWORKS 中,工程圖是您從 3D 零件或組合件模型產生的 2D 文件。 在 2D CAD 軟體中被視為工程圖的工具在 SOLIDWORKS 軟體中是草圖繪製工具。

在 SOLIDWORKS 中發展模型時,您是繪製幾何圖元 (例如矩形及圓) 來做為實體特徵的基礎 (例如伸長、旋轉、及除料)。 您可以大略繪製圖元,然後精確地標註圖元的尺寸。

從草圖到模型然後到工程圖的一般過程如下:

  1. 在零件文件中,開啟一個草圖並約略繪製一個圖元,例如矩形。

    extrude-sketch.gif
  2. 精確地標註圖元的尺寸。

    extrude-dimension.gif
  3. 伸長草圖來形成 3D 實體基材特徵,此特徵會成為零件的基礎。
    extrude-part.gif
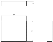
  4. 開啟一個新的工程圖,插入零件為 2D 標準三視圖,並插入尺寸。
    extrude-drawing.gif


提供對此主題的意見反應

SOLIDWORKS 歡迎您提供有關於文件呈現方式、正確性、及完整性的意見反應。請使用下方的表格直接將您對此主題的意見與建議傳送給我們的文件團隊。文件團隊並無法回答關於技術支援的問題。按一下此處來獲得關於技術支援的資訊

* 必要的

 
*電子郵件:  
主旨:   說明主題的意見反應
頁面:   草圖繪製 vs. 工程圖
*意見:  
*   我承認已閱讀且僅此接受隱私權政策,Dassault Systèmes 將遵循此政策之規定使用我的個人資料

列印主題

選擇要列印的內容範圍:

x

偵測到您使用的瀏覽器版本是舊於 Internet Explorer 7。要獲得最佳的顯示,建議您升級瀏覽器到 Internet Explorer 7 或更新的版本。

 不要再次顯示此訊息
x

Web 式說明內容版本:SOLIDWORKS 2017 SP05

要從 SOLIDWORKS 中停用 Web 式的說明並改用本機說明,請按一下說明 > 使用 SOLIDWORKS Web 式說明

要報告在 Web 式說明介面及搜尋中遇到的問題,請聯絡您當地的技術支援代表。要針對個別說明主題提供意見反應,請使用個別主題頁面中的「提供對此主題的意見反應」連結。