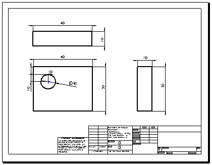
生成工程图 父主题工程图 工程图概述 制图 标准 缩放比例 多个工程图 标题块 工程视图 对齐视图 自动工程图操作 在 SOLIDWORKS 中制图 您可在 SOLIDWORKS 中制作工程图而不生成模型。 要在 SOLIDWORKS 中制作工程图而不生成模型: 打开一个打开一个 工程图文件。 选择一个模板。 使用草图工具栏上的工具绘制直线、矩形、圆、及其它实体。 使用尺寸/几何关系工具栏上的智能尺寸 工具给实体标注尺寸。 使用注解工具栏上的工具添加注解(注释、形位公差符号、零件序号,等等)。 从模型生成工程图 您可以从零件和装配体文档中生成工程图。 要从零件和装配体文档生成工程图: 在零件或装配体文档中单击标准工具栏上的从零件/装配体制作工程图 ,然后在图纸格式/大小对话框中选择一模板。“视图调色板”在窗口的右侧打开。 单击 钉住查看调色板。 从查看调色板拖动视图到工程图图纸。 在工程视图或投影视图 PropertyManager 中设置选项,如视向、显示样式、比例等,然后单击 。 重复步骤 3 和 4 来添加视图。 您可在所给的工程图文件中有任何模型的任何工程视图。 模型零件 插入了数个视图和尺寸的工程图
生成工程图 父主题工程图 工程图概述 制图 标准 缩放比例 多个工程图 标题块 工程视图 对齐视图 自动工程图操作 在 SOLIDWORKS 中制图 您可在 SOLIDWORKS 中制作工程图而不生成模型。 要在 SOLIDWORKS 中制作工程图而不生成模型: 打开一个打开一个 工程图文件。 选择一个模板。 使用草图工具栏上的工具绘制直线、矩形、圆、及其它实体。 使用尺寸/几何关系工具栏上的智能尺寸 工具给实体标注尺寸。 使用注解工具栏上的工具添加注解(注释、形位公差符号、零件序号,等等)。 从模型生成工程图 您可以从零件和装配体文档中生成工程图。 要从零件和装配体文档生成工程图: 在零件或装配体文档中单击标准工具栏上的从零件/装配体制作工程图 ,然后在图纸格式/大小对话框中选择一模板。“视图调色板”在窗口的右侧打开。 单击 钉住查看调色板。 从查看调色板拖动视图到工程图图纸。 在工程视图或投影视图 PropertyManager 中设置选项,如视向、显示样式、比例等,然后单击 。 重复步骤 3 和 4 来添加视图。 您可在所给的工程图文件中有任何模型的任何工程视图。 模型零件 插入了数个视图和尺寸的工程图
在 SOLIDWORKS 中制图 您可在 SOLIDWORKS 中制作工程图而不生成模型。 要在 SOLIDWORKS 中制作工程图而不生成模型: 打开一个打开一个 工程图文件。 选择一个模板。 使用草图工具栏上的工具绘制直线、矩形、圆、及其它实体。 使用尺寸/几何关系工具栏上的智能尺寸 工具给实体标注尺寸。 使用注解工具栏上的工具添加注解(注释、形位公差符号、零件序号,等等)。
从模型生成工程图 您可以从零件和装配体文档中生成工程图。 要从零件和装配体文档生成工程图: 在零件或装配体文档中单击标准工具栏上的从零件/装配体制作工程图 ,然后在图纸格式/大小对话框中选择一模板。“视图调色板”在窗口的右侧打开。 单击 钉住查看调色板。 从查看调色板拖动视图到工程图图纸。 在工程视图或投影视图 PropertyManager 中设置选项,如视向、显示样式、比例等,然后单击 。 重复步骤 3 和 4 来添加视图。 您可在所给的工程图文件中有任何模型的任何工程视图。 模型零件 插入了数个视图和尺寸的工程图