Créer des mises en plan

Esquisser dans SOLIDWORKS

Vous pouvez créer une mise en plan dans SOLIDWORKS sans créer de modèle.

Pour créer une mise en plan dans SOLIDWORKS sans créer de modèle :
  1. Ouvrez un Nouveau document de mise en plan. Choisissez un fond de plan.
  2. Dessinez des lignes, rectangles, cercles et autres entités à l'aide des outils de la barre d'outils Esquisse.
  3. Cotez les entités à l'aide de l'outil de Cotation intelligente dans la barre d'outils Cotations/Relations.
  4. Ajoutez des annotations (Notes, Symboles de tolérance géométrique, Bulles, etc.) avec les outils de la barre d'outils Annotation.

Créer des mises en plan à partir de modèles

Vous pouvez créer des mises en plans dans des documents de pièce ou d'assemblage.

Pour générer des mises en plan à partir de documents de pièce et d'assemblage:

  1. Dans un document de pièce ou d'assemblage, cliquez sur Créer une mise en plan à partir de la pièce/assemblage dans la barre d'outils Standard et sélectionnez un modèle dans la boîte de dialogue Taille/Format du fond de plan.
    La Palette de vues s'ouvre sur le côté droit de la fenêtre.
  2. Cliquez sur pour punaiser la Palette de vues.
  3. Faites glisser une vue de la Palette de vues sur la feuille de mise en plan.
  4. Dans le PropertyManager Vue de mise en plan ou Vue projetée, définissez les options comme l'orientation, le style d'affichage, l'échelle, etc. puis cliquez sur .
  5. Répétez les étapes 3 et 4 pour ajouter des vues.
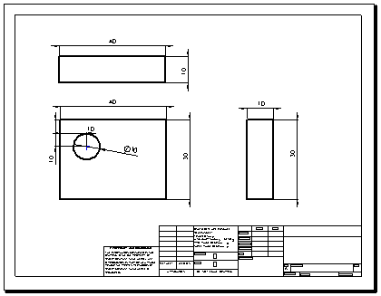
    Un document de mise en plan peut contenir n'importe quelle vue de mise en plan de n'importe quel modèle.
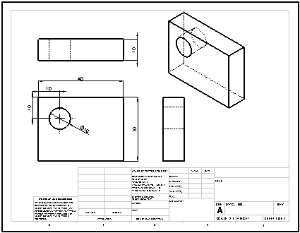
Pièce de modèle
Mise en plan dans laquelle plusieurs vues et cotes ont été insérées