
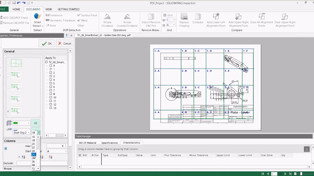
È possibile personalizzare le griglie per identificare rapidamente le loro caratteristiche.
È possibile:
- Modificare lo stile e le dimensioni del carattere dei marcatori di zona.
- Visualizzare le linee tratteggiate della griglia affinché siano meno appariscenti e ridurre l'interferenza con le dimensioni.
- Regolare la larghezza della colonna e l'altezza della riga in modo indipendente. Ciò consente agli utenti di creare documenti di controllo da file PDF legacy che potrebbero non avere righe o colonne equidistanti.