図面で複数の寸法を選択すると、整列ツールが寸法パレットで使用できるようになります。

寸法自動配列(Auto Arrange Dimensions) |
 |
選択した寸法を自動的に配置します。 寸法自動配列(Auto Arrange Dimensions)を参照してください。
|
長さ/半径均等(Space Evenly Linear/Radial) |
 |
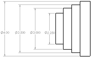
選択した寸法を部品に近い位置から遠い位置に向かって直線上または放射線状に均等に配置します。

|
同一線上に整列(Align Collinear) |
 |
寸法を横、縦または放射線状に配置します。 寸法を特定の寸法に合わせて整列するには、Ctrl キーを押したまま寸法を選択し、続いて残りの寸法を選択します。

|
互い違いに配置(Align Stagger) |
 |
直線寸法を互い違いに配置します。

|
寸法テキスト上揃え |
 |
寸法テキストを上揃えで配置します。

|
寸法テキスト下揃え(Bottom Justify Dimension Text) |
 |
寸法テキストを下揃えで配置します。

|
寸法テキスト左揃え(Left Justify Dimension Text) |
 |
選択寸法テキストを左揃えで配置します。

|
寸法テキスト右揃え |
 |
選択寸法テキストを右揃えで配置します。

|
寸法パレットのサムホイールを使用して、または寸法を手動でドラッグして、寸法の間隔を調整できます。 サムホイールは、間隔オプションが使用できるときにのみ寸法パレットに表示されます。
寸法間隔値(Dimension Spacing Value)は、間隔に対する倍率係数です。 たとえば、2 を設定すると間隔に係数 2 が適用され、つまり 2 倍になります。