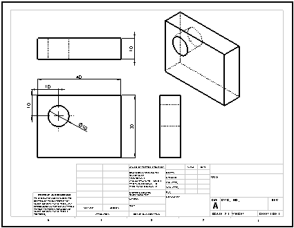
파트와 어셈블리 문서에서 도면을 작성할 수 있습니다.
- 파트나 어셈블리 문서에서, 표준 도구 모음에서 파트/어셈블리에서 도면 작성
을 클릭하고 시트 형식/크기 대화 상자에서 원하는 템플릿을 선택합니다.뷰 팔레트가 창의 오른쪽에 열립니다.
을 클릭해서 뷰 팔레트를 고정합니다.
- 뷰 팔레트에서 뷰를 도면 시트로 끕니다.
- 도면 뷰 또는 투상도 PropertyManager에서, 방향, 표시 유형, 배율 등의 옵션을 정한 다음
을 클릭합니다.
- 3과 4 단계를 반복하고 뷰를 추가합니다.
도면 문서에 모델의 다양한 도면뷰를 작성할 수 있습니다.
 |
| 모델 파트 |
 |
| 여러 개의 뷰와 치수가 삽입된 도면 |