목차 숨기기

SolidWorks에서 구배하기

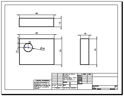
모델 작성 없이 SolidWorks에서 도면을 구배할 수 있습니다.

모델 작성 없이 SolidWorks에서 도면 구배하는 방법
  1. 도면 새 문서를 여십시오. 템플릿을 선택하십시오.
  2. 스케치 도구 모음에 있는 도구들을 사용하여 선, 사각형, 원 등을 그립니다.
  3. 치수/구속조건 도구 모음에서 지능형 치수 도구를 사용하여 스케치에 치수를 부가합니다.
  4. 주석 도구 모음에 있는 도구를 사용하여 노트, 기하 공차 기호, 부품 번호 등과 같은 주석을 삽입합니다.



이 도움말에 대한 피드백 제공

SOLIDWORKS는 도움말 정보의 개선을 위한 고객님의 제안 사항과 의견을 환영합니다. 제안하고자 하는 의견을 아래 양식에 작성하여 도움말 문서 팀에 직접 전달할 수 있습니다. 문서 팀은 제품에 관한 기술적인 지원은 하지 않습니다. 기술 지원에 관한 정보는 여기를 클릭하십시오.

* 필수 입력

 
*전자 메일:  
제목:   도움말에 대한 피드백
페이지:   SolidWorks에서 구배하기
*사용자 의견:  
*   개인정보 보호정책을 읽었으며 본 정책에 따라 Dassault Systèmes에서 내 개인 정보를 사용하는 것에

인쇄 항목

인쇄할 콘텐츠 범위 선택:

x

Internet Explorer 7 이전 버전을 사용하고 있습니다. 페이지를 최적화하려면 사용 브라우저를 Internet Explorer 7 이상으로 업그레이드합니다.

 이 메시지를 다시 표시하지 않음
x

웹 도움말 콘텐츠 버전: SOLIDWORKS 2013 SP05

SOLIDWORKS에서 웹 도움말 기능을 비활성화하고 로컬 도움말을 사용하려면, 도움말 > SOLIDWORKS 웹 도움말 사용을 클릭합니다.

웹 도움말 인터페이스나 검색 기능에서 발생한 오류 사항을 보고하려면, 로컬 지원 서비스 담당자에게 문의하십시오. 개별 도움말 항목에 대한 피드백을 제공하려면, 각 도움말 페이지의 "이 단원에 대한 피드백 제공" 링크를 사용하십시오.