Al seleccionar dos o más cotas en un dibujo, aparece un conjunto de herramientas de alineación en la paleta de cota.

Organizar cotas automáticamente |
 |
Organiza las cotas seleccionadas automáticamente. Consulte Organizar cotas automáticamente.
|
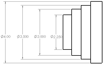
Espaciado lineal/radial uniforme |
 |
Separa con el mismo espacio, lineal o radialmente, las cotas seleccionadas que se encuentran entre las cotas seleccionadas más cercana y más lejana en la pieza.

|
Alinear colineal |
 |
Alinea las cotas seleccionadas de manera horizontal, vertical o radial. Para alinear cotas con respecto a una cota específica, presione la tecla Ctrl, seleccione la cota y, a continuación, elija las otras cotas.

|
Alineación zig zag |
 |
Escalona las cotas lineales seleccionadas.

|
Justificación superior del texto de cota |
 |
Justifica el texto de la cota seleccionada en la parte superior.

|
Justificación inferior del texto de cota |
 |
Justifica el texto de la cota seleccionada en la parte inferior.

|
Justificación a la izquierda del texto de cota |
 |
Justifica el texto de la cota seleccionada en la parte izquierda.

|
Justificación a la derecha del texto de cota |
 |
Justifica el texto de la cota seleccionada en la parte derecha.

|
Para ajustar la separación entre las cotas, utilice la rueda en la paleta de cotas o arrastre manualmente las cotas. La rueda aparece en la paleta de cotas sólo cuando hay opciones de separación disponibles.
El Valor de espacio de cota es el factor de escala para el espacio de separación. Por ejemplo, 2 aumenta el espacio de separación por un factor de 2 o lo duplica.