Criação de desenhos

Rascunhos no SOLIDWORKS

Para fazer um rascunho de um desenho no SOLIDWORKS sem criar um modelo.

Para fazer um rascunho de um desenho no SOLIDWORKS sem criar um modelo:
  1. Abra um Novo documento de desenho. Escolha um template.
  2. Desenhe linhas, retângulos, círculos e outras entidades com as ferramentas da barra de ferramentas Esboço.
  3. Dimensione as entidades com a ferramenta Dimensão inteligente da barra de ferramentas Dimensões/Relações.
  4. Adicione anotações (Notas, Símbolos de tolerância geométrica, Balões, etc.) com as ferramentas da barra de ferramentas Anotação.

Criar desenhos a partir de modelos

Você pode criar desenhos a partir de documentos de peça e montagem.

Para gerar desenhos a partir de documentos de peça ou montagem:

  1. Em um documento de peça ou montagem, clique em Criar desenho a partir da peça/montagem na barra de ferramentas Padrão e selecione um template na caixa de diálogo Formato/tamanho da folha.
    A Paleta de vistas é aberta do lado direito da janela.
  2. Clique em para fixar a Paleta de vistas.
  3. Arraste uma vista da Paleta para a folha de desenho.
  4. No PropertyManager de Vista de desenho ou de Vista projetada, defina as opções como orientação, estilo de exibição, escala, etc. depois clique em .
  5. Repita as etapas 3 e 4 para adicionar vistas.
    Você pode ter muitas vistas de desenho de qualquer modelo em cada documento de desenho.
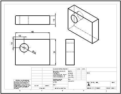
Peça de modelo
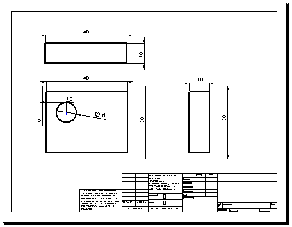
Desenho com várias vistas e dimensões inseridas