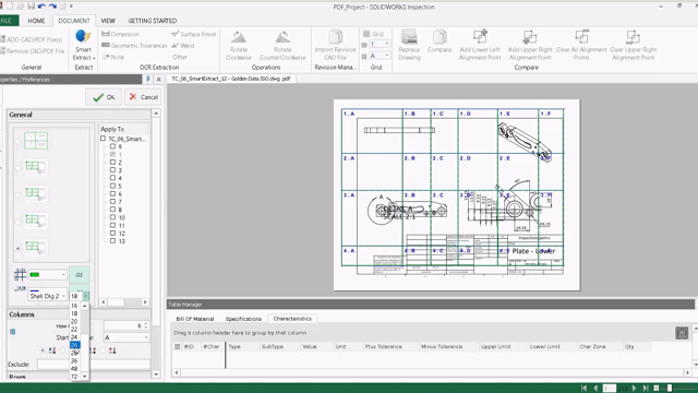
Улучшения сетки

Можно настроить сетки, чтобы быстро определить их характеристики.

Можно выполнить следующие действия:
  • Изменение стиля шрифта и размера маркеров зоны.
  • Менее яркое отображение пунктирных линий сетки для удобочитаемого и четкого отображения размеров.
  • Независимая настройка ширины столбца и высоты строки. Все это помогает пользователям создавать документы контроля из устаревших файлов PDF, в которых интервалы между столбцами или строками не одинаковые.