Bemaßungspalette - Ausrichtungswerkzeuge

Wenn Sie zwei oder mehr Bemaßungen in einer Zeichnung auswählen, wird ein Satz an Ausrichtungswerkzeugen auf der Bemaßungspalette angezeigt.



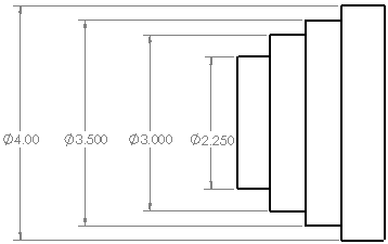
Bemaßungen automatisch anordnen

Ordnet die ausgewählten Bemaßungen automatisch an. Siehe Bemaßungen automatisch anordnen.

Gleichmäßiger linearer/radialer Abstand

Positioniert ausgewählte Bemaßungen in gleichem Abstand linear oder radial zwischen den von Teil am nächsten und entferntesten ausgewählten Bemaßungen.

Kollinear ausrichten
Richtet ausgewählte Bemaßungen horizontal, vertikal oder radial aus.
Um Bemaßungen auf eine bestimmte Bemaßung auszurichten, drücken Sie auf Strg, und wählen Sie die Bemaßung aus. Wählen Sie anschließend die restlichen Bemaßungen aus.

Versetzt ausrichten

Positioniert ausgewählte lineare Bemaßungen versetzt.

Bemaßungstext nach oben ausrichten

Richtet Bemaßungstext nach oben aus.

Bemaßungstext nach unten ausrichten

Richtet Bemaßungstext nach unten aus.

Bemaßungstext linksbündig

Richtet Bemaßungstext linksbündig aus.

Bemaßungstext rechtsbündig

Richtet Bemaßungstext rechtsbündig aus.

So passen Sie den Abstand zwischen Bemaßungen an:

Verwenden Sie das Einstellrad in der Bemaßungspalette oder ziehen Sie die Bemaßungen manuell. Das Einstellrad wird in der Bemaßungspalette nur dann angezeigt, wenn die Abstandsoptionen verfügbar sind.

Der Bemaßungsabstandswert ist der Skalierungsfaktor für den Abstand. 2 z.B. vergrößert den Abstand um eine Faktor 2 oder verdoppelt ihn.